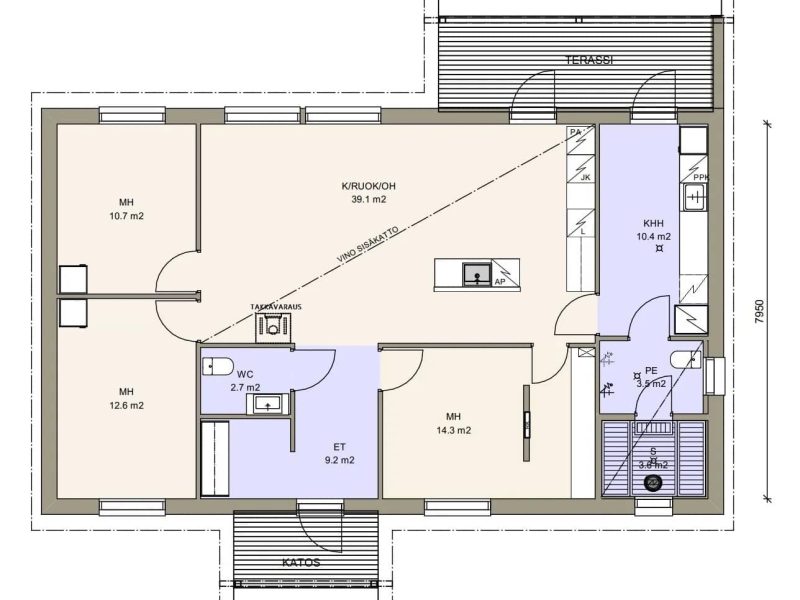
KIRJOSIEPPO
Huoneistoala 110 m² | 3 mh, oh-k, vh, khh, kph, s, wc, et, arkiet
Suosittu perinteikäs malli monenlaisiin tarpeisiin!
Tässä kodissa on olohuone-keittiössä vakiona vino sisäkatto ja isot ikkunat! Keittiöstä käynti isolle katetulle terassille. Kolme makuuhuonetta, joista yhdessä yhdessä walk-in-closet -tyylinen vaatehuone.
Kiintokalusteisiin, kodinkoneisiin sekä pintamateriaaleihin pääset vaikuttamaan itse. Ne ovat jo lähtötasoltaan laadukkaat vastaten nykypäivän vaatimuksia.
Sauna ja kylpyhuone muodostavat mukavan lasiseinällä erotetun kokonaisuuden. Paneloinnit ja vastakkain istuttavat tasolauteet vaaleaa haapaa. Etäohjattava Harvia Cilindro -pilarikiuas.
Lämmitysjärjestelmänä poistoilmalämpöpumppu vesikiertoisella lattialämmityksellä. Ostajalla mahdollisuus halutessa vaikuttaa lämmitysjärjestelmään.
Koti luovutetaan täysin valmiina, pihatyöt tehtynä: Nurmikko kylvettynä ja parkkialue sorastettuna.
Hinnat alkaen tasamaatontille. Lopullinen hinta määräytyy tontin mukaan. Kysy lisää myyjältämme!
alk. 249 000 €
Mallistomme on monilta osin muunneltavissa kaikkiin tarpeisiin ja erilaisille tonteille. Kysy lisää muunneltavuudesta.






