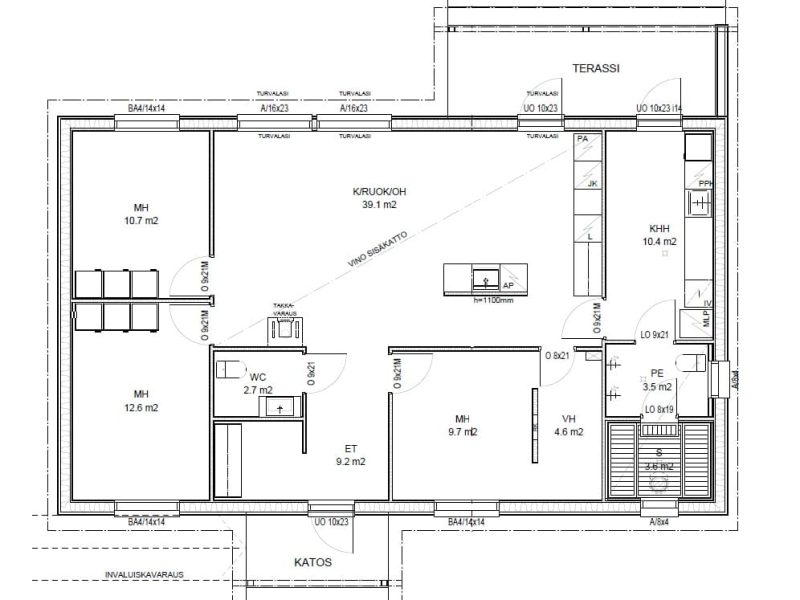
110 m² omakotitalo Limingassa

Tämä kohde on myyty

Jokivarrentie 29, 91900 Liminka