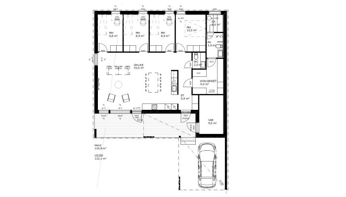
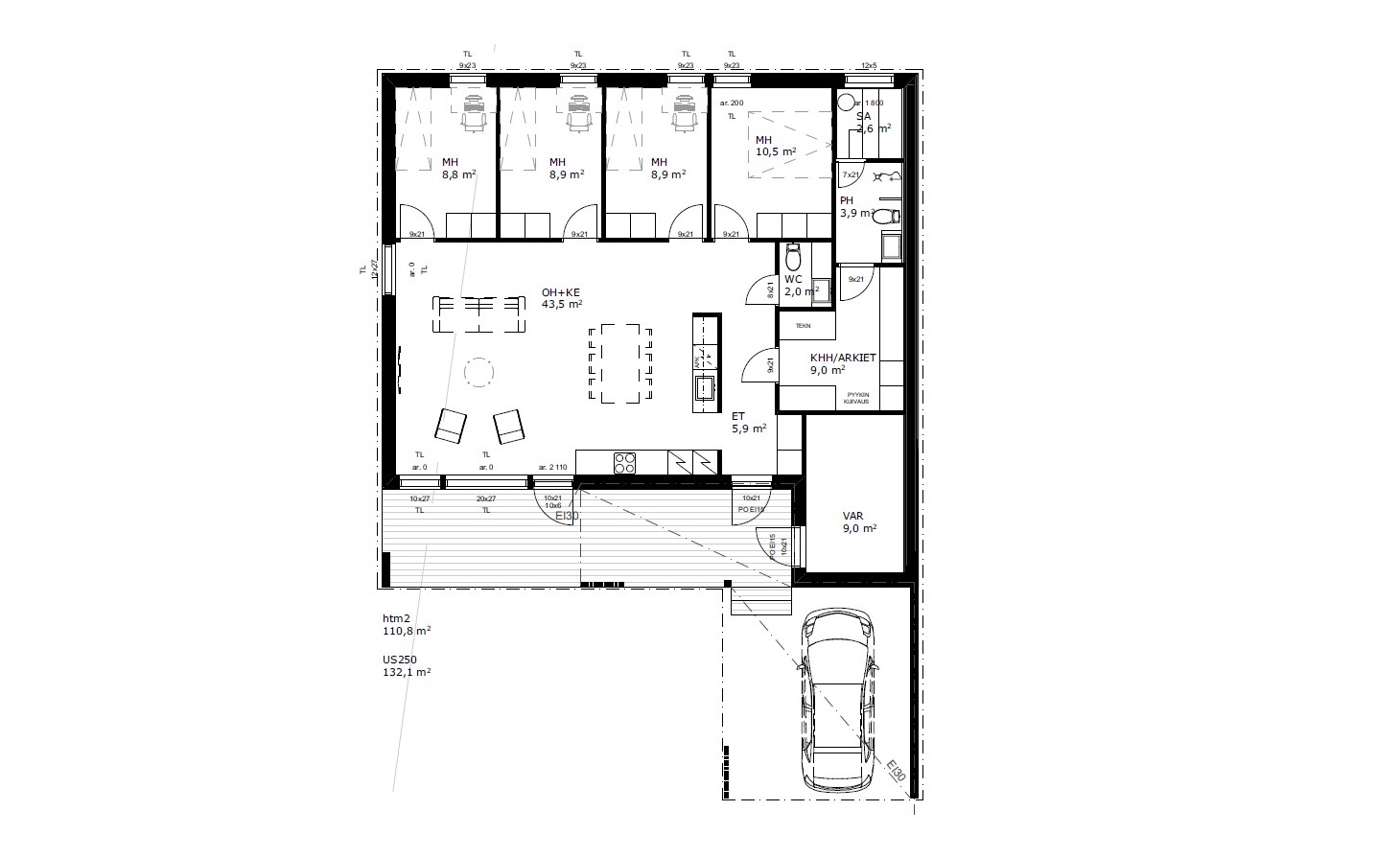
Tilavat perheasunnot Oulun Haapalehtoon!

Uusi laadukas koti luonnon helmasta?

Tulossa myyntiin 3-4 makuuhuoneen omakotitalot luonnonläheiselle paikalle Oulun Haapalehtoon!

Tarkemmat tiedot kohteesta tulevat myöhemmin. Mikäli tämä voisi olla sinulle sopiva paikka, ole yhteydessä niin saat lisätiedot ensimmäisten joukossa!

 

Kysy lisää:

Jonne Nevala
p. 044 493 1161
jonne.nevala@lakeuskodit.fi

Osoite: Partiotie 5, 90650 Oulu