TERVAPÄÄSKY
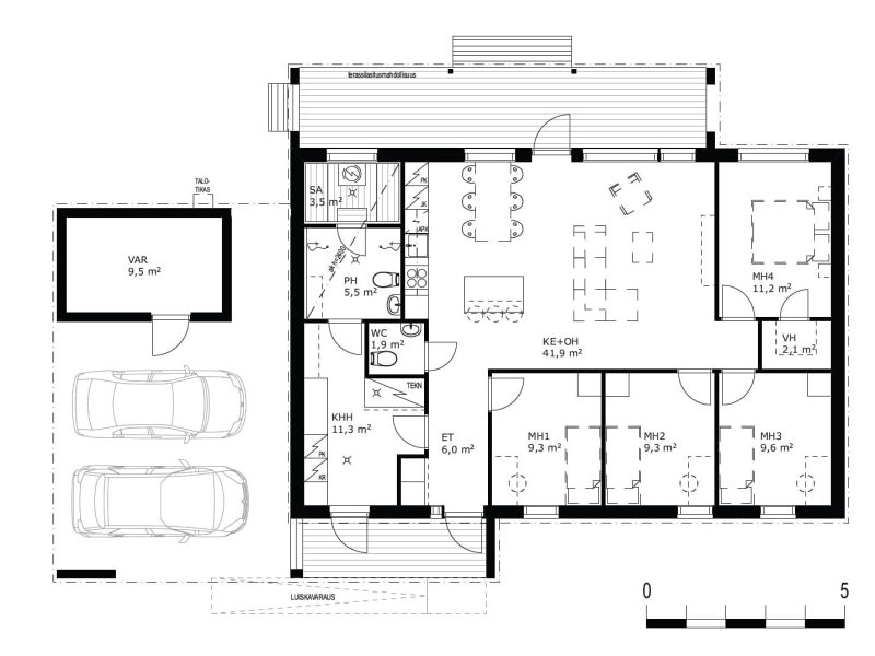
Huoneistoala 115,5 m² | 4 mh, oh-k, vh, khh, kph, s, wc, et, (ak, var)
Olohuoneen ja keittiön isot ikkunat ja katettu terassi avautuvat sisäpihalle. Neljä makuuhuonetta, joista päämakuuhuoneessa vaatehuone. Kodinhoitohuone toimii samalla tilavana arkieteisenä.
Kiintokalusteisiin, kodinkoneisiin sekä pintamateriaaleihin pääset vaikuttamaan itse. Ne ovat jo lähtötasoltaan laadukkaat vastaten nykypäivän vaatimuksia.
Sauna ja kylpyhuone muodostavat mukavan, halutessa lasiseinällä erotetun kokonaisuuden. Paneloinnit ja vastakkain istuttavat tasolauteet vaaleaa haapaa. Etäohjattava Harvia Cilindro -pilarikiuas.
Lämmitysjärjestelmänä poistoilmalämpöpumppu vesikiertoisella lattialämmityksellä. Ostajalla mahdollisuus halutessa vaikuttaa lämmitysjärjestelmään.
Koti luovutetaan täysin valmiina, pihatyöt tehtynä: Nurmikko kylvettynä ja parkkialue sorastettuna.
Hinnat alkaen tasamaatontille. Lopullinen hinta määräytyy tontin mukaan. Kysy lisää myyjältämme!
ilman katos-varastoa (sisäänkäyntikatos kuuluu) alk. 265 000 €
katos-varastolla alk. 299 000 €
Mallistomme on monilta osin muunneltavissa kaikkiin tarpeisiin ja erilaisille tonteille. Kysy lisää muunneltavuudesta.
![hakkuritie-19_piha-1_v1[98]](https://lakeuskodit.fi/wp-content/uploads/elementor/thumbs/hakkuritie-19_piha-1_v198-rjrdv1m4t8mzqf8xxatm7i9y3jowfn8tndg66df2i8.jpg)




