Myytävät omakotitalot Oulun seudulta

Tervetuloa taloesittelyyn Oulun Pateniemeen

Repsikantie 8B, 90800 Oulu │ 18.10.2025 klo 13–15

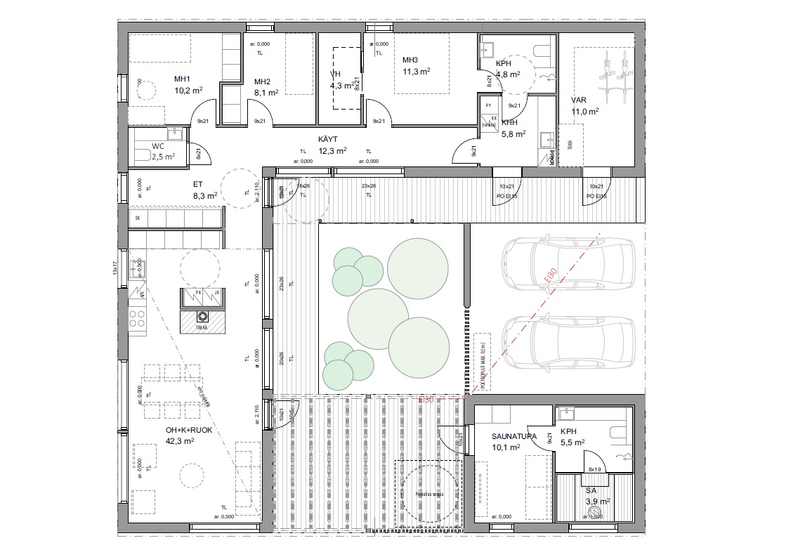
Tämä ainutlaatuinen koti on suunniteltu asiakkaan toiveiden mukaisesti ja toteutettu Lakeus-Kotien Kaikkikuuluu™-toimituksena. Koko projekti on ollut meidän käsissämme tontin hankinnasta valmiiseen kotiin asti. Asiakas on saanut keskittyä valintoihin ja toiveisiin, ja me olemme hoitaneet kaiken muun.

Tämän kodin sydän on atriumpiha, joka tarjoaa yksityisyyttä ja tuo luonnonvalon sisätiloihin. Asuintilat, saunatilat ja autokatos muodostavat yhdessä lasitetun pergolan kanssa atriumpihan. Piha tarjoaa yksityisyyttä ja valoa rakennuksen eri osiin suurten atriumpihalle aukeavien ikkunoiden kautta.

Valo ja avaruus yhdistyvät selkeisiin pohjaratkaisuihin, jotka tekevät arjesta toimivaa ja viihtyisää. Erillinen saunaosasto saunatupineen tarjoaa rauhallisen levähdyspaikan arjen keskelle.

Esittelyssä on paikalla myös kodin omistajat, jotka kertovat omista kokemuksistaan ja siitä, millaista on rakentaa koti Lakeus-Kotien kanssa.

Tervetuloa paikan päälle kokemaan käytännössä, mitä Kaikkikuuluu™ tarkoittaa.

Osoite: Repsikantie 8B, 90800 Oulu

Myydyt omakotitalot